
客服熱線:400-660-2180
電 話:+86-512-6251-3433;+86-512-6288-3733;+86-512-6288-9565
傳 真:+86-512-6288-3633
電子郵箱:sales-sz@plan-lab.com
地 址:江蘇蘇州市工業園區通園路199號(聯發工業園)18幢
嗅覺實驗室(惡臭汙染檢測)解決方案
一、概述
惡臭是指難聞的臭味。迄今憑人的嗅覺就能感覺到的惡臭物質就有4000多種,其中對人體健康危害較大的有幾十種。有的散發出腐敗的臭魚味,如胺類;有的刺鼻,如氨類和醛類;有的放出臭雞蛋味,如硫化氫;有的類似爛洋蔥或爛洋白菜味等等。惡臭物質使人呼吸不暢,惡心嘔吐,煩躁不安,頭暈腦脹,甚至把人熏倒,濃度高時,還會使人窒息而死。
惡臭物質分布很廣,影響範圍大,已成為一些國家的公害。惡臭物質多來源於化學、製藥、製紙、製革、肥料、食品、鑄造等工業。惡臭對人的呼吸係統、循環係統、消化係統、內分泌係統、神經係統都有不同程度的損害。惡臭還會使人煩躁不安,工作效率減低,判斷力和記憶力下降。高濃度惡臭物質突然襲擊,有時會把人當場熏倒,造成事故。
二、發臭機製
縱觀這些惡臭物質,除了氨、硫化氫等少數無機物以外,絕大多數是有機物。有機惡臭物質中,除了有機物必有的碳(C)及絕大數有的氫(H)以外,硫(S)、氮(N)、氧(O)和氯(Cl)是惡臭物質中常見的組成元素。有機惡臭物質常含有羥基(-OH)、羰基( )、羧基(-COOH)、氨基(-NH2)、巰基(-SH)等官能團,組成酚、醇、酮、羧酸、胺、硫醇、硫醚等化合物。表1-1是常見惡臭物質的分類及其氣味性質
表1-1 常見惡臭物質的分類及其氣味性質

三、惡臭的來源
從惡臭物質生成的特性來看,一種是屬於天然形成的動植物在生態環境係統中自然界腐敗分解或加工過程中產生、釋放的氣體;另一種為工業型惡臭汙染源排放的氣體,主要是指各種天然材料或工業合成的產品加工、生產或貯存、運輸過程的跑冒滴漏、正常的排放或意外突發性事故造成大量惡臭的排放。表1-2是主要惡臭物質的來源。
表1-2 主要惡臭物質的來源

四、惡臭的危害
惡臭的危害主要有六個方麵:①危害呼吸係統。人們突然聞到惡臭,就會產生反射性的抑製吸氣,使呼吸次數減少,深度變淺,甚至完全停止吸氣,即所謂“閉氣”,妨礙正常呼吸功能。②危害循環係統。隨著呼吸的變化,會出現脈搏和血壓的變化。如氨等刺激性臭氣會使血壓出現先下降後上升,脈搏先減慢後加快的現象。③危害消化係統。經常接觸惡臭,會使人厭食、惡心,甚至嘔吐,進而發展為消化功能減退。④危害內分泌係統。經常受惡臭刺激,會使內分泌係統的分泌功能紊亂,影響機體的代謝活動。⑤危害神經係統。長期受到一種或幾種低濃度惡臭物質的刺激,會引起嗅覺脫失、嗅覺疲勞等障礙。“久聞而不知其臭”,使嗅覺喪失了第一道防禦功能,但腦神經仍不斷受到刺激和損傷,最後導致大腦皮層興奮和抑製的調節功能失調。⑥對精神的影響。惡臭使人精神煩躁不安,思想不集中,工作效率減低,判斷力和記憶力下降,影響大腦的思考活動。
高濃度惡臭物質的突然襲擊,有時會把人當場熏倒,造成事故。例如在日本川崎市,1961年8~9月就曾連續發生三次惡臭公害事件,都是由一家工廠夜間排放一種含硫醇的廢油引起的。惡臭擴散到距排放源20多公裏的地方,近處有人當場被熏倒;遠處有人在熟睡中被熏醒。還有人惡心、嘔吐、眼睛疼痛等等。
五、惡臭汙染監測
我國《環境保護法》和《大氣汙染防治法》均有對惡臭氣體排放的限製條款,如《環境保護法》第24條:產生環境汙染和其他公害的單位,必須把環境保護工作納入計劃,建立環境保護責任製度;采取有效措施,防治在生產建設或者其他活動中產生的廢氣、廢水、廢渣、粉塵、惡臭氣體、放射性物質以及噪聲、振動、電磁波輻射等對環境的汙染和危害。《大氣汙染防治法》第40條:向大氣排放惡臭氣體的排汙單位,必須采取措施防止周圍居民區受到汙染;第40條:在人口集中地區和其他依法需要特殊保護的區域內,禁止焚燒瀝青、油氈、橡膠、塑料、皮革、垃圾以及其他產生有毒有害煙塵和惡臭氣體的物質。
依據《環境保護法》和《大氣汙染防治法》,我國製定了《惡臭汙染排放標準》(GB14554-93)及相關監測標準。《惡臭汙染排放標準》(GB14554-93)分年限規定了8種惡臭汙染物的一次最大排放值、臭氣濃度限值及無組織排放源的廠界濃度限值。


六、實驗室解決方案
6.1 人員要求
嗅覺實驗室一般情況是作為第三方實驗室而建立的,需要依據《實驗室資質認定評審準則》和《檢測和校準實驗室能力認可準則》(CNAS-CL01:2006),同時惡臭汙染檢測涉及化學和感觀檢測兩個領域,所以還需要滿足《檢測和校準實驗室能力認可準則在感官檢驗領域的應用說明》(CNAS-CL26:2007)和《檢測和校準實驗室能力認可準則在化學檢測領域的應用說明》(CNAS-CL10:2006)對人員的要求。
而對於臭氣濃度的檢測,《空氣質量 惡臭的測定 三點比較式臭袋法》(GB/T14657-93)對檢測人員(嗅辨員)還有特殊要求。表1-3是相關準則、標準對實驗室人員的要求。

注:很明顯可以看出GB/T 14657-93關於嗅辨員的要求是與CNAS-CL26:2007的要求相符的。
ISO 8586分兩部分:
ISO 8586-1:1993 感官分析鑒定員的選擇、培訓和監視的一般導則 第 1 部分:鑒定員的選擇 http://www.iso.org/iso/iso_catalogue/catalogue_tc/catalogue_detail.htm?csnumber=15875
ISO 8586-2:2008 感官分析鑒定員的選擇、培訓和監視的一般導則 第 2 部分:專家 http://www.iso.org/iso/catalogue_detail?csnumber=37389
嗅辨員的考核
1.筆試
2.現場提問
3.鼻試
在一個通風條件良好的房間裏,考官給出五張白色的紙條。考官會事先將其中3條浸入無臭液中一厘米,另外兩條浸入標準臭液中一厘米,然後將5條臭液紙條間隔一定距離平行放置,叫考生嗅辨。如果第一關辨別準確了,就到下一個房間裏聞下一種氣味。一般來說,要保證考生能分辨出花香、汗臭、甜鍋巴氣味、成熟水果香和糞臭這5種單一氣體。如果在鼻試闖關時有一張紙條聞錯了,那就會被刷下。表1-4為標準臭液的組成及性質。
判定師考核:
判定師除了嗅辨員的考核外,還對其經驗有所要求,如操作、配氣等方麵要求均嚴於嗅辨員。(表1-3已經提到)
表1-4 標準臭液的組成及性質

注:液體石蠟被作為無臭液和標準臭液的溶劑;無臭紙——層析濾紙,紙條寬10mm,長120mm。
嗅辨員如何保護鼻子
做了嗅辨員後,就特別愛護自己的鼻子。平時應及時關注天氣變化,盡量不讓自己感冒。
因為嗅辨員萬一不小心感冒了,鼻子不靈就得暫時“離崗”,由別嗅辨員來替代。
在實驗過程中,所有實驗人員不允許身上有氣味,女孩子不能塗脂抹粉,不能使用香水。
嗅辨員的飲食禁忌———不吃辛辣的、油炸的食品,蔥、薑、蒜、辣椒等調味品都不能放。
6.2 檢測方法
《惡臭汙染物排放標準》(GB14554-93)規定了8種惡臭物質限值,8種惡臭氣體的檢測方法見表1-5。
表1-5 8種惡臭氣體和臭氣濃度的推薦檢測方法

6.3 儀器設備
6.3.1 分析儀器
6.3.1.1 從表1-5所列的標準方法中向日葵视频污下载可以了解到,除了臭氣濃度是用鼻子來評價之外,向日葵视频污下载分析8中惡臭物質僅僅需要的是氣象色譜儀和分光光度計而已,對於分光光度計在此就不做闡述了,下麵說說氣相色譜儀器的相關配置:
表1-6 標準方法中氣相色譜儀的配置

6.3.1.2 氣相色譜儀主要檢測器介紹

表1-7 分析惡臭物質常用的檢測器

6.3.1.3 色譜柱的選擇
我國在20世紀70~90年製定了大量的應用氣相色譜法分析各類有機化合物的國家標準和行業標準,
其中絕大多數是使用填充柱。(表1-6可以看出,所列國標均是填充柱法)
填充柱固然有其優點和適用性,但其分離能力遠遠比不上毛細管柱。
如今,向日葵视频污下载麵對著分析對象及其基體越來越複雜化,要從眾多複雜組分將所需物質分離出來,
填充柱往往已經不能勝任。
近些年來,毛細管柱在GC、GC-MS分析中得到非常廣泛的應用,毛細管柱的商品化也已經達到相當高的程度。
所以,就現在的技術條件和物質基礎來說,至少在環境分析領域(包括惡臭分析)沒有必要也不會再去選擇填充柱。
下麵向日葵视频污下载就說說,選擇毛細管色譜柱的5大要素:
① 毛細管柱的類型
② WCOT柱固定相
③ 固定相的膜厚
④ 毛細管柱的長度
⑤ 毛細管柱的內徑
毛細管柱的類型:在此說的毛細管柱都是隻熔融石英毛細管柱,它有兩種基本類型:
管壁塗漬開口柱(WCOT)和多孔層開口柱(PLOT)。
而WCOT柱是氣相色譜中最常用的,大多數惡臭物質分析一般都使用WCOT柱,但是含硫化合物
的分析選擇PLOT-Q將是十分明智的。
WCOT柱固定相:1.聚矽氧烷固定相 2.聚乙二醇固定相
根據惡臭物質的極性大小選擇合適的固定相。
固定相的膜厚:標準膜厚為0.25um~0.5um,對於流出溫度為300℃大多數化合物分析很好,
對於更高的洗脫溫度,可用0.1um的液膜。惡臭物質大多是揮發性化合物,洗脫溫度不會很高,
綜合考慮其他因素,可以選擇0.5um~1.0um的膜厚。
毛細管柱的長度:增加柱長就增加了塔板數,可以提高峰的分辨率,但分析時間也延長。
對於惡臭物質,一般選擇25m或30m的標準柱長即可滿足分析,隻有非常複雜的樣品才會選擇50m或更長的柱子。
毛細管柱的內徑:毛細管柱的內徑是一個比較重要的參數。增大內徑意味著需要更多的固定相,
就算膜厚不增加,也會有較大的柱容量。但同時也降低了分離能力且流失較大。
總體來說,0.2/0.25mm內徑具有較高的柱效,適用於分流/不分流進樣及GC-MS分析;
0.32mm內徑,適用於分流進樣及柱上進樣;
0.53mm內徑的毛細管柱,其膜厚都在1.0um以上,柱容量大,能夠承受大容量進樣,為痕量分析創造了條件。
毛細管柱的長度、膜厚和內徑的確定,需要分析者的實際情況出發,結合儀器的配置、樣品濃度、樣品複雜程度和
前處理方法等因素綜合考慮。
6.4 設施和環境條件
依據《空氣質量 惡臭的測定 三點比較式臭袋法》(GB/T14657-93)和
《感官分析 建立感官分析實驗室的一般導則》(GB/T13868-2009)(等同ISO8589:2007)
來說明一下嗅覺實驗室建立的一般條件,一般實驗室和儀器室(如GC室)在此將不作說明。
6.4.1 實驗室的建立
實驗室至少具備:
——供個人或小組進行嗅覺評價工作的檢驗區,即嗅辨室;
——樣品準備區。
嗅覺實驗室應建立在嗅辨員易於到達的地方,且除非采取幹擾措施,應避免建在交通流量大的地方。
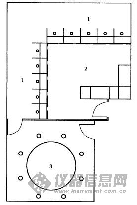
參考設計圖如下:
參考1

1——評價小間
2——樣品準備區
3——會議室和集體工作區
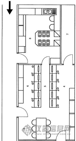
參考2

3——集體工作區
4——評價小間
5——樣品分發區
6——樣品製備區
7——儲藏室
6.4.2 檢驗區(嗅辨室)
一般要求
檢驗區最小應能容納6~7名嗅辨員同時工作。
檢驗區應緊鄰樣品準備區(配氣房),以便提供樣品等。但兩個區域應隔開,以減小氣味的幹擾。
為避免對檢驗結果帶來誤差,不允許嗅辨員進入或離開檢驗區時穿過準備區。
環境條件要求
檢驗區應能通風換氣;檢驗時,保持溫度在17℃~25℃。
檢驗區的環境條件總體感覺應盡量使嗅辨員感到舒適。
氣味
檢驗區盡量保持無氣味。可以安裝帶活性炭過濾器的換氣係統,必要時,可利用形成正壓的方式減少外界氣體的侵入。
檢驗區的建築材料應易於清潔,不吸附和散發氣味;相應的設施和裝置(如桌椅等)也不應散發氣味幹擾檢驗;根據實驗室
用途,應盡量減少使用對檢驗有幹擾的設施和裝置。
使用清潔劑等不應在檢驗區留下氣味。
安全防護
應配備相應的通風廚;應當設置安全出口標誌。
6.4.3 評價(嗅辨)小間
一般要求
惡臭嗅辨試驗一般由1名判定師主持,6名嗅辨員進行嗅辨,6名嗅辨員分別單獨對三隻試驗氣袋進行嗅辨
其中一隻是經過稀釋的臭氣,其餘兩隻是無臭清潔空氣。為了避免嗅辨過程中的幹擾和相互交流,通常可以使用獨立的
評價小間進行工作。
數量
根據檢驗區的空間大小和嗅辨員數量等確定評價小間的數量,並能保證檢驗區內有足夠的活動空間和提供樣品的空間。
設置
推薦使用固定的評價小間,也可以采用臨時或移動的。
若評價消減是沿著檢驗區和準備區的隔牆設立的,則宜在評價小間的牆上開一窗口以傳遞樣品。窗口的設計應便於樣品的傳遞並保證嗅辨員
看不到樣品準備和樣品編號的過程。為方便使用,應咋準備區沿著評價小間外壁安裝工作台。
評價小間內宜設有信號係統,以使嗅辨員準備就緒時通知檢驗主持人,特別是準備區與檢驗區有隔牆分開時尤為重要。可通過開關打開準備區
一側的指示燈或者在送樣窗口下移動卡片。
評價小間可標有數字或符號,以便嗅辨員對號入座。
布局和大小
評價小間的工作台應有足夠大小能容納樣品和必要的器具及設施,同時能有足夠的空間以便於嗅辨員填寫記錄等。
工作台長最少0.9m,寬0.6m;評價小間側麵隔板的高度至少高出工作台麵0.3m。
6.4.4 集體工作區
可設置一個集體工作區,以便於判定師和嗅辨員進行討論,同時也可用於培訓。
集體工作區應足夠大,能擺放一張大桌子及配置舒適的椅子供所有檢驗人員同時使用,桌子應能足夠放置必要的物品和器具。
6.4.5 準備區(配氣房)
一般要求
準備樣品的區域要緊鄰檢驗區,避免嗅辨員進入檢驗區時穿過樣品準備區而對樣品檢驗結果造成偏差。
各功能區內及各功能區之間布局合理,使樣品準備的工作流程便捷高效。
準備區應保證空氣流通,以利於排除樣品準備時的氣味及來自外部的異味。
地板、牆壁天花板和其他設施所用材料應易於維護、無味、無吸附性。
準備區建立時,水、電、氣裝置的放置空間要有一定餘地,以備將來位置的調整。
設施
準備區需配備的設施,主要有:
——工作台。
——洗滌水池和其他供應洗滌用水的設施。
——必要設備,如無臭空氣淨化裝置、聚酯無臭袋等。
——清洗設施。
——貯藏設施。
——其他必需的設施。
上一條: 關於建設PCR實驗室的基本設備與要求
下一條: 實驗室氣流控製係統說明